联系我们
- 全国免费服务电话
- 地址:永嘉县瓯北镇东瓯街道张堡工业区
- 电话:0577-67317379、67365232
- 手机:13868647363
- 邮箱:zhongtefamen@163.com
- 传真:0577-67317193
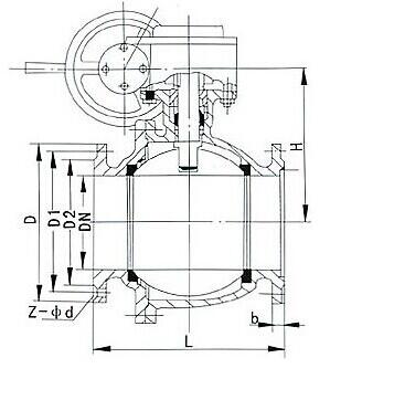
![[field:title/]](/uploads/190413/1-1Z41320250L30.png)
Q347F固定球阀
来源:球阀 发布时间:2019-04-13 20:24 浏览次- 型号:Q347F
- 连接形式:法兰
- 主体材料:铸钢、不锈钢
- 公称通径:10-500
- 适用介质:水
- 密封形式:软密封
- 外形:中型
- 流动方向:单向
- 驱动方式:手动、气动、电动
产品说明
一、Q347F固定球阀概述:
Q347F固定球阀有全通径和缩径两种结构形式。用于输送帖连、易结渣介质管道上的球阀应使用全通径的,方便定期的刮蜡吹扫器的通过。用于输送气体或物理性能近似于水的介质的管道上宜使用缩径球阀,因其重量比全径球阀轻30%左右,有利于减轻管道负荷,降低成本。球阀是一种转角为90°的旋转类阀门,密封性能优良, (全径球阀)流量系数大流阻系数小,结构简单,使用寿命长,便于维修。广泛应用于化工、石油、轻纺、电力、食品制药、制冷、造纸行业的系统控制。

二、Q347F固定球阀功能特点:
1、有显著的开关位置指示:阀体、球体和手柄一个装配单元,手柄指向管线方向阀门为开启,手柄垂直管线方向阀门为关闭;即使是蜗轮头上也带开/关指示 。
2、锁定装置设计:为了防止开关的错误操作,采用扁头阀杆在开关位置设置锁定孔,确保阀门处于正确的位置。
3、防吹出的导向式阀杆。阀杆从阀体内倒装或防吹结构,
并由密封环密封,即使发生火灾,填料烧损,阀杆突起部位也可与阀体上的密封面紧密接触,能用效的防止外漏及阀杆飞出,减少事故损失。
4、防静电设计:采用铬镍不锈钢的弹簧和小球使球体,阀杆和阀体之间相互导电,从而把非金属阀座与球体摩擦产生的静电完全释放。
5、防火结构:万一发生火灾或异常升温使PTFE软化烧损时,阀座支承圈防火密封面可以和球体接触,起到密封作用且符合API607和API6FA规范要求。防火安全设计,在阀座支承面内侧精确加工一道防火密封唇,当发生火灾阀烧损时,防火密封唇与球体间形成金属对金属的密封,阀门填料垫片均采用耐调温石墨材料,保证阀门在火灾发生时无外漏。
6、自动泄压:阀门中腔停滞的介质由于温度升高而出现异常升压时,阀座出口端具有自动泄压功能,同时根据需要,阀体上可装安全阀,保证阀体具有自动泄压功能,确保管道安全。
7、密封的紧急救护:由于介质中的杂质或火灾造成阀座密封意外失败,注脂阀提供了与注脂枪的快速连接,方便快捷地将密封脂注入到阀座密封部位,缓解泄漏。
8、采用进出口双向密封,使密封更加可靠,阀门无论单身加压,中腔关压(无论哪一种试压方法)均能达到零泄漏。
三、Q347F固定球阀外形及链接尺寸:
|
公称压力PN |
公称通径 |
L |
d1 |
D |
D1 |
D2 |
D6 |
f |
f2 |
b |
Z-φd |
H1 |
H2 |
||
|
RF |
BW |
全通径 |
缩径 |
||||||||||||
|
1.6 |
25 |
127 |
165 |
25 |
- |
115 |
85 |
65 |
- |
2 |
- |
14 |
4-14 |
- |
75 |
|
32 |
140 |
178 |
32 |
- |
135 |
100 |
78 |
- |
2 |
- |
16 |
4-18 |
- |
85 |
|
|
40 |
165 |
190 |
40 |
- |
145 |
110 |
85 |
- |
3 |
- |
16 |
4-18 |
- |
95 |
|
|
50 |
178 |
216 |
50 |
- |
160 |
125 |
100 |
- |
3 |
- |
16 |
4-18 |
- |
107 |
|
|
65 |
190 |
241 |
65 |
- |
180 |
145 |
120 |
- |
3 |
- |
18 |
4-18 |
- |
142 |
|
|
80 |
283 |
283 |
80 |
65 |
195 |
160 |
135 |
- |
3 |
- |
20 |
8-18 |
- |
152 |
|
|
100 |
305 |
305 |
100 |
80 |
215 |
180 |
155 |
- |
3 |
- |
20 |
8-18 |
- |
178 |
|
|
125 |
356 |
381 |
125 |
100 |
245 |
210 |
185 |
- |
3 |
- |
22 |
8-18 |
- |
252 |
|
|
150 |
394 |
457 |
150 |
125 |
280 |
240 |
210 |
- |
3 |
- |
24 |
8-23 |
- |
272 |
|
|
200 |
457 |
521 |
200 |
150 |
335 |
295 |
265 |
- |
3 |
- |
26 |
12-23 |
- |
398 |
|
|
250 |
533 |
559 |
250 |
200 |
405 |
355 |
320 |
- |
3 |
- |
26 |
12-25 |
335 |
495 |
|
|
300 |
610 |
625 |
300 |
250 |
460 |
410 |
375 |
- |
4 |
- |
30 |
12-25 |
385 |
580 |
|
|
350 |
686 |
762 |
350 |
300 |
520 |
470 |
435 |
- |
4 |
- |
34 |
16-25 |
430 |
625 |
|
|
400 |
762 |
838 |
400 |
350 |
580 |
525 |
485 |
- |
4 |
- |
36 |
16-30 |
470 |
720 |
|
|
450 |
864 |
914 |
450 |
350 |
640 |
585 |
545 |
- |
4 |
- |
40 |
20-30 |
- |
- |
|
|
500 |
914 |
991 |
500 |
400 |
705 |
650 |
608 |
- |
4 |
- |
44 |
20-34 |
590 |
840 |
|
|
600 |
1067 |
1143 |
600 |
500 |
840 |
770 |
718 |
- |
5 |
- |
48 |
20-41 |
700 |
1050 |
|
|
700 |
1245 |
1346 |
700 |
600 |
910 |
840 |
788 |
- |
5 |
- |
50 |
24-41 |
780 |
1150 |
|
亲爱的客户:
首先感谢您访问我们的中特官网www.zhongtefamen.com,希望我们的网站能给您提供所需要的阀门信息,如果您对我们的产品还有其他的疑问,建议或者服务,欢迎您随时拨打我们的热线电话13868647363与我们取得联系。我们一定会尽最大的努力给您提供完善优质的服务。最后中特人祝福您,您的满意就是我们最大的荣幸!
产品关键词 :球阀 固定球阀 浮动球阀 涡轮固定球阀 偏心半球阀





