联系我们
- 全国免费服务电话
- 地址:永嘉县瓯北镇东瓯街道张堡工业区
- 电话:0577-67317379、67365232
- 手机:13868647363
- 邮箱:zhongtefamen@163.com
- 传真:0577-67317193
铸铁镶铜圆闸门图片
来源: 铸铁镶铜圆闸门 发布时间: 2016-08-06 14:02 次浏览
7月27日,在最高人民法院推进环境资源审判工作研讨会上,最高法院正式发布了《中国环境资源审判》(白皮书)。白皮书分5个部分介绍和展示了人民法院环境资源审判工作的开展情况和取得的成效。这是国家部门对环境资源重视的又一个里程碑式的节点。
随着国家和人民对环境的重视,越来越多的环保工程开始崭露头角,而污水治理作为环保中的重要一项更是占据了重中之重的位置。而我们今天介绍的铸铁镶铜圆闸门就是城建,市建污水泵站建设工程中必不可少的一个阀门。中特阀门做为一家专业生产污水制造阀门的厂家,更是经常与污水泵站采购商或私人承包商接触。但有很多一部分客户原来从未接触或者不太了解铸铁镶铜圆闸门,今天小编就特意抽空为大家整理了一些铸铁镶铜圆闸门的实物图片以供大家参考。
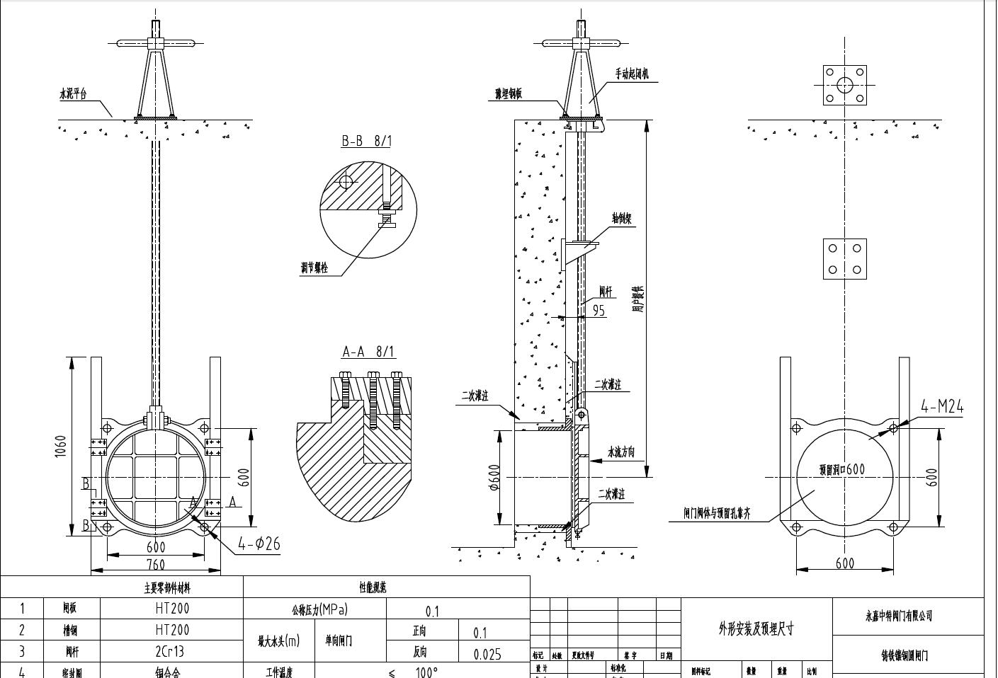
铸铁镶铜圆闸门的名字由来就是根据阀门材质而命名的,铸铁是指闸门本身主体材质为铸铁,密封为镶铜密封。阀门结构由门框、闸板、导轨、密封条、可调整密封机构等部件组成。具有结构简单,密封性能好,耐磨性强,操作简单,安装方便,使用寿命长,规格齐全,适用性广等特点,可根据客户需要选配手动启闭机或手电两用启闭机。
1、铸铁镶铜圆闸门正面图:

2、铸铁镶铜圆闸门反面图:

3、铸铁镶铜圆闸门密封面图:

4、铸铁镶铜圆闸门安装示意图:

5、铸铁镶铜圆闸门现场安装图:

如有更多阀门相关需要,请访问我们网站 www.zhongtefamen.com。
