联系我们
- 全国免费服务电话
- 地址:永嘉县瓯北镇东瓯街道张堡工业区
- 电话:0577-67317379、67365232
- 手机:13868647363
- 邮箱:zhongtefamen@163.com
- 传真:0577-67317193
![[field:title/]](/uploads/190413/1-1Z413213Q2129.png)
ZDLP电动单座调节阀
来源:启闭机 发布时间:2019-04-13 21:38 浏览次- 型号:ZDLP
- 连接形式:法兰
- 主体材料:铸钢、不锈钢
- 公称通径:40-600
- 适用介质:水、气体
- 密封形式:软密封
- 外形:中型
- 流动方向:单向
- 驱动方式:手动、气动、电动
产品说明
一、ZDLP电动单座调节阀概述:
ZDLP电动单座调节阀,配用3601L系列电子式直行程电动执行机构.具有结构紧凑、重量轻、动作灵敏、阀容量大、流量特性精确、拆装方便等优点.广泛应用于精确控制气体、液体、蒸汽等介质的工艺参数如压力、流量、温度、液位保持在给定值.特别适用于压差较大,允许泄漏量也较大且不是很清洁的介质场合。
本系列产品有标准型、波纹管密封型、夹套保温型等多种品种.产品公称压力等级有PN16、40、64;公称通径范围DN25~400.适用流体温度有 -250℃~+560℃范围内多种档次.泄漏量标准为Ⅱ级或Ⅳ级.流量特性为线性或等百分比.多种多样的品种规格可供选择。
二、ZDLP电动单座调节阀主要零件材料:
阀体、阀盖:HT200、ZG230~450、ZG1Cr18Ni9Ti
阀芯、阀座:1Cr18Ni9Ti、司钛莱合金堆焊
填 料:聚四氟乙烯、柔性石墨、不锈钢波纹管
垫 片:橡胶石棉板、1cr18Ni9Ti、石墨缠绕垫片
阀杆、推杆:2Cr13、1Cr18Ni9Ti
衬 套:2Cr13
三、ZDLP电动单座调节阀主要技术参数:
| 公称通径mm | 20 | 25 | 32 | 40 | 50 | 65 | 80 | 100 | 125 | 150 | 200 | 250 | 300 | 400 | |
| 阀座通径mm | 20 | 26 | 32 | 40 | 50 | 66 | 80 | 100 | 125 | 150 | 200 | 250 | 300 | ||
|
额定流量系数kv |
6.9 | 11 | 17.6 | 27.5 | 44 | 69 | 110 | 176 | 275 | 440 | 690 | 1000 | 1600 | 2700 | |
| 公称压力(MPa) | 0.6,1.6, 2.5, 4.0, 6.4 | ||||||||||||||
| 行程(mm) | 10 | 16 | 25 | 40 | 60 | 100 | |||||||||
| 流量特性 | 直线,等百分比,快开 | ||||||||||||||
| 工作温度℃ | -40~230℃(常温型),散热片式230~450℃(中温型),特殊订货-100~600℃ | ||||||||||||||
| 法兰尺寸 | 符合JB78-59、JB79-59标准,可按JB/79.1-94、JB、ANSI、JIS、DIN 等标准订货生产 | ||||||||||||||
| 阀体材质 | WCB(ZG230-450)、ZG1Cr18Ni9Ti、ZG0Cr18Ni12Mo2Ti CF8 CF8M | ||||||||||||||
| 阀芯材质 | 1Cr18Ni9,SS304,0Cr18Ni12Mo2Ti,SS316,ZG1Cr18Ni9Ti | ||||||||||||||
| 阀体型式 | 直通双座铸造球型阀 | ||||||||||||||
| 上阀盖型式 | 普通式(常温),热片式(中温),长颈式(低温) | ||||||||||||||
| 阀体允许压差 | ≤公称压力 | 4.0 | 3.4 | ||||||||||||
| 配用电动执行机构型号 | PSL | PSL-201 | PSL-202 | PSL-204 | PSL-208 | PSL-312 | PSL325 | ||||||||
| 361L | 361LSA-08 | 361LSA-20 | 361LSB-30 | 361LSB-50 | 361LSC-65 | 361LSC-99 | |||||||||
| 防爆型 | 361LXA-20 | 361LXB-30 | 361LXB-50 | ||||||||||||
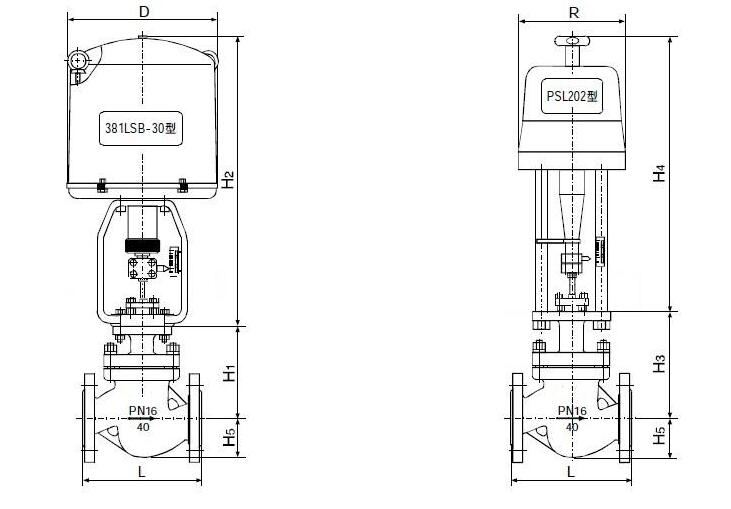
四、ZDLP电动单座调节阀外形尺寸图:

亲爱的客户:
首先感谢您访问我们的中特官网www.zhongtefamen.com,希望我们的网站能给您提供所需要的阀门信息,如果您对我们的产品还有其他的疑问、建议或者服务,欢迎您随时拨打我们的热线电话13868647363与我们取得联系。我们一定会尽力给您提供完善优质的服务。中特人祝福您,您的满意就是我们的荣幸!
产品关键词:调节阀,套筒调节阀,单座调节阀,电动调节阀,气动调节阀,自力式调节阀





