联系我们
- 全国免费服务电话
- 地址:永嘉县瓯北镇东瓯街道张堡工业区
- 电话:0577-67317379、67365232
- 手机:13868647363
- 邮箱:zhongtefamen@163.com
- 传真:0577-67317193
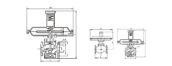
![[field:title/]](/uploads/190413/1-1Z413212240O9.png)
ZZYV自力式微压调节阀
来源:启闭机 发布时间:2019-04-13 21:22 浏览次- 型号:ZZYV
- 连接形式:法兰
- 主体材料:铸钢、不锈钢
- 公称通径:40-600
- 适用介质:水、气体
- 密封形式:软密封
- 外形:中型
- 流动方向:单向
- 驱动方式:手动、气动、电动
产品说明
一、ZZYV自力式微压调节阀简介:
ZZYV自力式微压调节阀属于自力式压力调节阀的系列;是一种不需要外加任何能源的自力式阀,依靠介质自身能源控制的得阀门,介于自力式阀门系列中ZZYP和ZZYVP中间的自力式阀.主要用于控制阀前压力小于0.2MPa的场合。
二、ZZYV自力式微压调节阀特点:
1、调节弹簧设计在薄膜执行机构上方,利于现场调试。
2、无填料,阀杆上、下活动是不存在摩擦,上密封绝对可靠
3、执行机构敏感元件极为灵敏,极微小的压力变化会被感测出来
4、阀体为四通形式,因而K、B型可通用一种阀体
5、平衡型结构,不受阀前压力影响
三、ZZYV自力式微压调节阀主要零件:
1 阀体
2 膜片
3 膜盖
4 调节弹簧
5 平衡膜片
四、ZZYV自力式微压调节阀原理:

该阀采用大膜片执行机构输出力大稳定,对压力流量微小变化极其敏感,控制精度很高,阀芯采用单座流开(高进低出)设计,在阀盖处(和阀体连接处)安装有平衡膜片(起到阀前压力平衡,消除不平衡力)阀后压力经取压管进入薄膜执行机构,同薄膜执行机构调节弹簧相比较,压力达不到设定值(调节压缩执行机构弹簧)阀后压力则变大,反之则变小。
亲爱的客户:
首先感谢您访问我们的中特官网www.zhongtefamen.com,希望我们的网站能给您提供所需要的阀门信息,如果您对我们的产品还有其他的疑问、建议或者服务,欢迎您随时拨打我们的热线电话13868647363与我们取得联系。我们一定会尽力给您提供完善优质的服务。中特人祝福您,您的满意就是我们的荣幸!
产品关键词:调节阀,套筒调节阀,单座调节阀,电动调节阀,气动调节阀,自力式调节阀





