联系我们
- 全国免费服务电话
- 地址:永嘉县瓯北镇东瓯街道张堡工业区
- 电话:0577-67317379、67365232
- 手机:13868647363
- 邮箱:zhongtefamen@163.com
- 传真:0577-67317193
2018-04-10 20:30:51不锈钢闸门技术要求资料
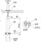
不锈钢闸门适用于附壁式安装。启闭机应置于操作平台上,操作手轮的高度应适合于人工操作,并通过螺杆(或接杆)与闸门连接,必要时应设置中间导向支承,以满足门杆柔度(细长比)≤200要求。...
2018-04-10 20:22:08气动插板门技术要求资料
气动插板门煤粉分配器出口门的设计满足甲方介质种类、温度、压力、流速煤粉分配器出口门门板的密封(主要指标)设计可靠,严密无外漏;全行程无卡涩;结构上便于检修。...
2018-04-09 21:43:18电动矩形双挡板风门详细资料技术要求
风门由电动执行机构控制,执行机构应配备两对有指示全开全闭的限位开关、开方向关方向两个方向的力矩开关、事故手轮和维修用的机械联锁。在控制室能通过DCS对风门进行操作,在现场能通过就地按钮及手轮进行就地操作,控制箱设有就地/远方操作切换开关。...
2018-04-09 21:35:03圆形铸铁镶铜闸门资料技术要求
厂家根据图纸规格、技术性能要求,提供完整的为完成本项目所必须的装配完整的圆形铸铁镶铜闸门、启闭机、门框、导轨、闸杆、支撑架、传动止座、电动装置、密封圈、必要的备品备件。...
2018-04-09 21:25:31电动闸板阀技术资料要求
电动闸板阀执行机构带就地阀门控制箱,实现电动闸板阀远控。就地阀门控制箱包含打开指令、关闭指令、已开状态、已关状态、故障、远方就地等信号,通过硬接线将就地阀门控制箱信号送至DCS控制系统。双方分界点在就地阀门控制箱端子排上。端子排至就地设备电缆...
2017-12-06 21:38:26新型Q系列阀门电动执行机构的特点
随着工业动化技术的发展和蝶阀的大量应用,工业管道控制系统对小型Q系列阀门的电动执行器需求量逐年增加,对其性能要求越来越高,参考吸收了国内外的诸行业的使用情况和先进技术,新一代Q系列电动执行器有以下突出优点...
2017-12-06 21:34:55大口径闸阀驱动装置的改进
阀杆在原来的长度上加长一个手轮的厚度来支撑手轮圆周转动。手动不直接传递阀杆转动,而是通过键与结合套链接为一体,由结合套端面的接合齿轮传递给直推轴承套,带动阀杆旋转完成启闭运动。...










