联系我们
- 全国免费服务电话
- 地址:永嘉县瓯北镇东瓯街道张堡工业区
- 电话:0577-67317379、67365232
- 手机:13868647363
- 邮箱:zhongtefamen@163.com
- 传真:0577-67317193
![[field:title/]](/uploads/190413/1-1Z4131405134b.jpg)
方形风管止回阀
来源:蝶阀 发布时间:2019-04-13 14:05 浏览次- 型号:H47X
- 连接形式:法兰
- 主体材料:碳钢/不锈钢
- 公称通径:100*100-3000*3000
- 适用介质:气体
- 密封形式:硬密封
- 外形:中型
- 流动方向:单向
- 驱动方式:手动、气动、电动
产品说明
方形风管止回阀 详细说明:
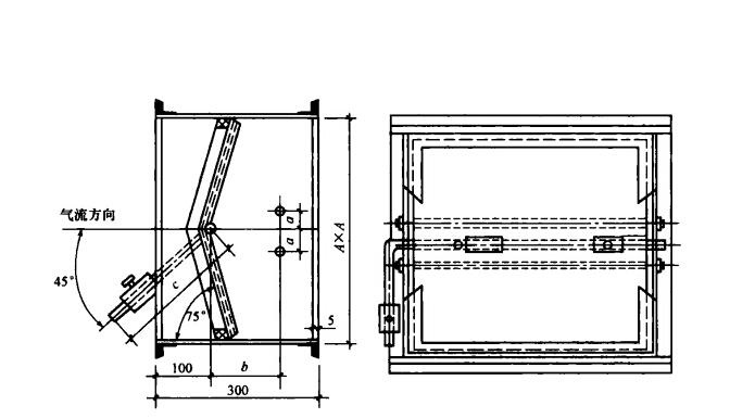
产品名称:方形风道止回阀
产品型号:T303C-2(装水平管道上)无重锤,T303P-2带重锤式
产品规格:400*400-3000*3000
公称压力:0.1MPa
适用介质:空气、尘气及其它气体
产品用途:本厂生产的矩形风道止回阀广泛适用于建材、矿山、电力、轻工、玻璃等行业的通风管路系统中,进行气流单向调节及逆向截止。

风道止回阀结构设计新颖,传动独特,运行灵活,体积小,重量轻。当通风时,由风压而使其开启,停止逆风时,由于叶片与重锤的重力,阀板自行关闭,通过调整重锤的位置来调整气流量。T303P-1风道止回阀装在水平管道上,为圆法兰连接,风道止回阀T303P-2为方法兰连接,T303C-1风道止回阀装在垂直管道上(无重锤),为圆法兰连接,T303C-2为方法兰连接。
亲爱的来访客户:
首先感谢您访问我们的中特官网www.zhongtefamen.com,希望我们的网站能给您提供所需要的阀门信息,如果您对我们的产品还有其他的疑问,建议或者服务,欢迎您随时拨打我们的热线电话13868647363与我们取得联系。我们一定会尽最大的努力给您提供完善优质的服务。最后中特人祝福您,您的满意就是我们最大的荣幸!
关键词 :风管止回阀 风道止回阀 单向止回阀




